REQUEST A TOUR If you would like to see this home without being there in person, select the "Virtual Tour" option and your agent will contact you to discuss available opportunities.
In-PersonVirtual Tour

$129,900
Est. payment /mo
UPDATED:
Key Details
Property Type Commercial
Sub Type Office
Listing Status Active
Purchase Type For Sale
MLS® Listing ID A2057929
Year Built 2008
Annual Tax Amount $2,755
Tax Year 2023
Property Sub-Type Office
Source Grande Prairie
Property Description
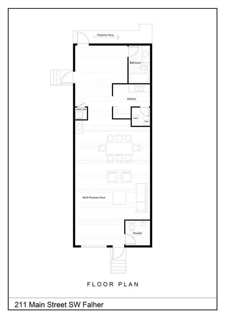
A 2008 - 1200 square foot modular office. The two bathrooms, janitors room and kitchen create the ideal footprint for your vision. With an endless amount of opportunity to turn into a store front, service or office facility. Located centrally on Main Street in Falher, leave it where it is or it has the flexibility to be moved. Call, email or text today to find out more.
Location
Province AB
County Smoky River No. 130, M.d. Of
Zoning Commercial
Others
Restrictions None Known
Tax ID 83596067
Ownership Private
Read Less Info
Listed by Grassroots Realty Group - High Prairie

GET MORE INFORMATION
QUICK SEARCH
- Airdrie, AB Homes For Sale
- Cochrane, AB Homes For Sale
- Okotoks, AB Homes For Sale
- Rocky View County, AB Homes For Sale
- Foothills County, AB Homes For Sale
- Canmore, AB Homes For Sale
- Banff, AB Homes For Sale
- Chestemere, AB Homes For Sale
- Springbank, AB Homes For Sale
- Black Diamond / Turner Valley, AB Homes For Sale
- Bragg Creek, AB Homes For Sale
- Langdon, AB Homes For Sale
- Arbour, AB Homes For Sale
- Royal Oak , AB Homes For Sale
- Rocky Ridge, AB Homes For Sale
- Tuscany, AB Homes For Sale
- Altadore, AB Homes For Sale
- South Calgary, AB Homes For Sale
- Killarney, AB Homes For Sale
- Glendale, AB Homes For Sale
- Springbank Hill, AB Homes For Sale
- Sienna Hills, AB Homes For Sale




